Loading...
0   /   100
Interiors  /  Retail

Savage X Fenty

Scroll Down

Working with Rihanna

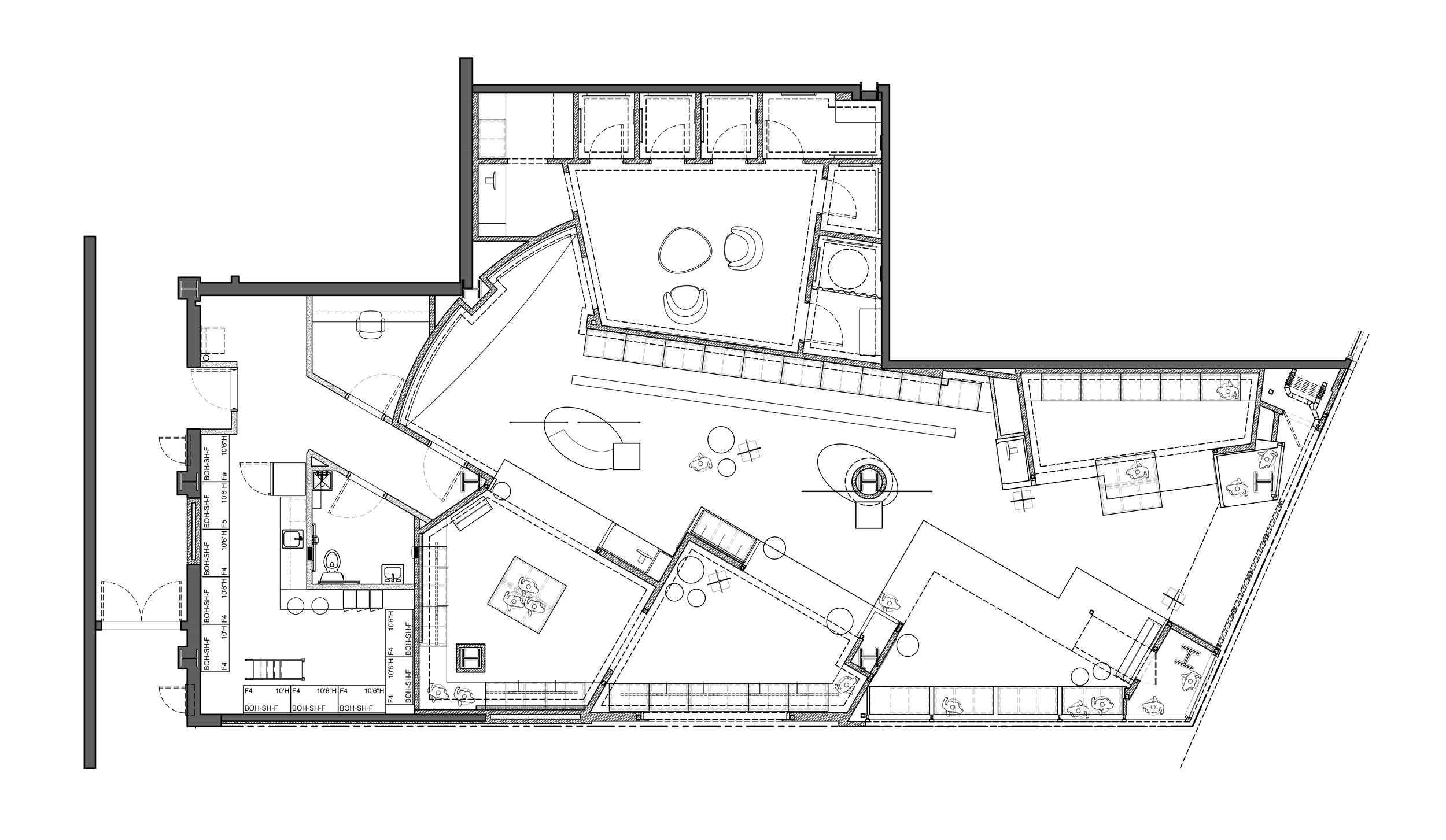
Collaborating with the iconic Rihanna, our architectural vision for Savage has been profoundly influenced by her unique blend of intimacy and boldness, transforming the underwear shopping experience into a celebration of self-expression. Savage stands as a testament to inclusivity, embracing every body in its true form and challenging the outdated ideals of a perfect physique.

Our design philosophy is deeply aligned with the Savage brand ethos, advocating for the beauty of natural forms. By employing a dynamic range of lighting colors and patterns, we’ve crafted diverse atmospheres within the space, each designed to resonate with and awaken the shopper’s personal sense of sensuality. These elements not only enhance the physical environment but also enrich the emotional and experiential connection for each visitor.

 

This project does not simply create a space; it fosters a sanctuary where boldness and intimacy coalesce, encouraging all who enter to embrace their true selves in an atmosphere of unapologetic authenticity.

Our design process becomes a testament to this paradigm shift, meticulously crafting spaces that embrace and showcase the diversity of the human body. Through thoughtful spatial arrangements, lighting strategies, and material selections, we endeavor to craft environments that not only elevate the shopping experience but also serve as sanctuaries of empowerment and self-expression