Loading...
0   /   100
Architecture  /  Houses

Al Helal Chalet

Position
Architect in Charge
Location
Sabah Al Ahmad Sea City Marina, Kuwait
Size
700 m2
Year
2021

Description

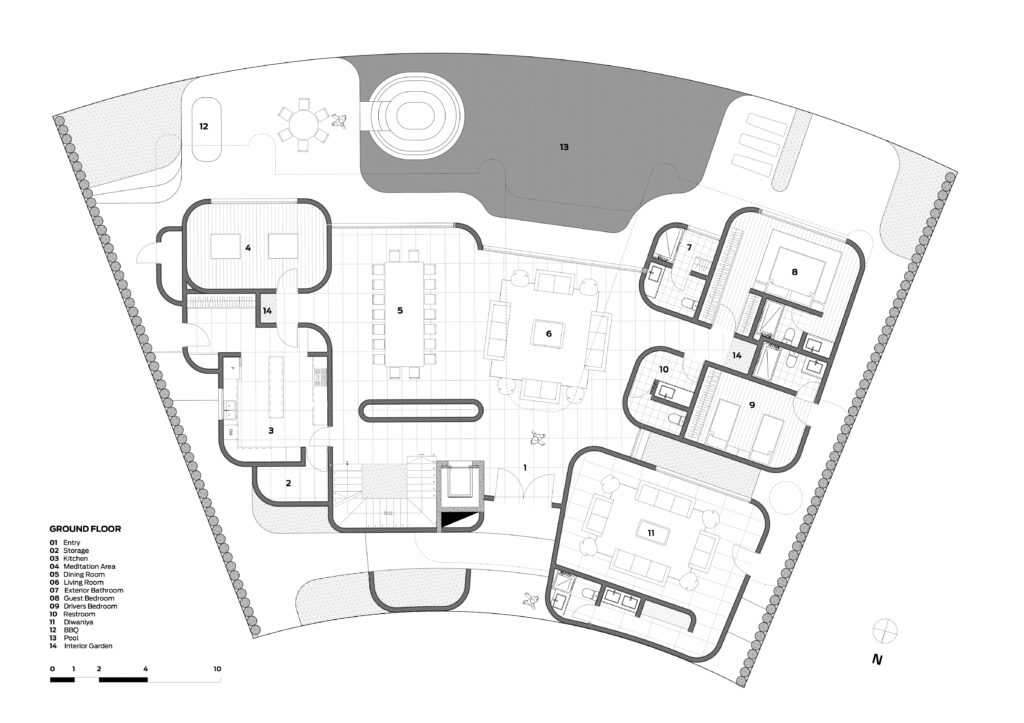
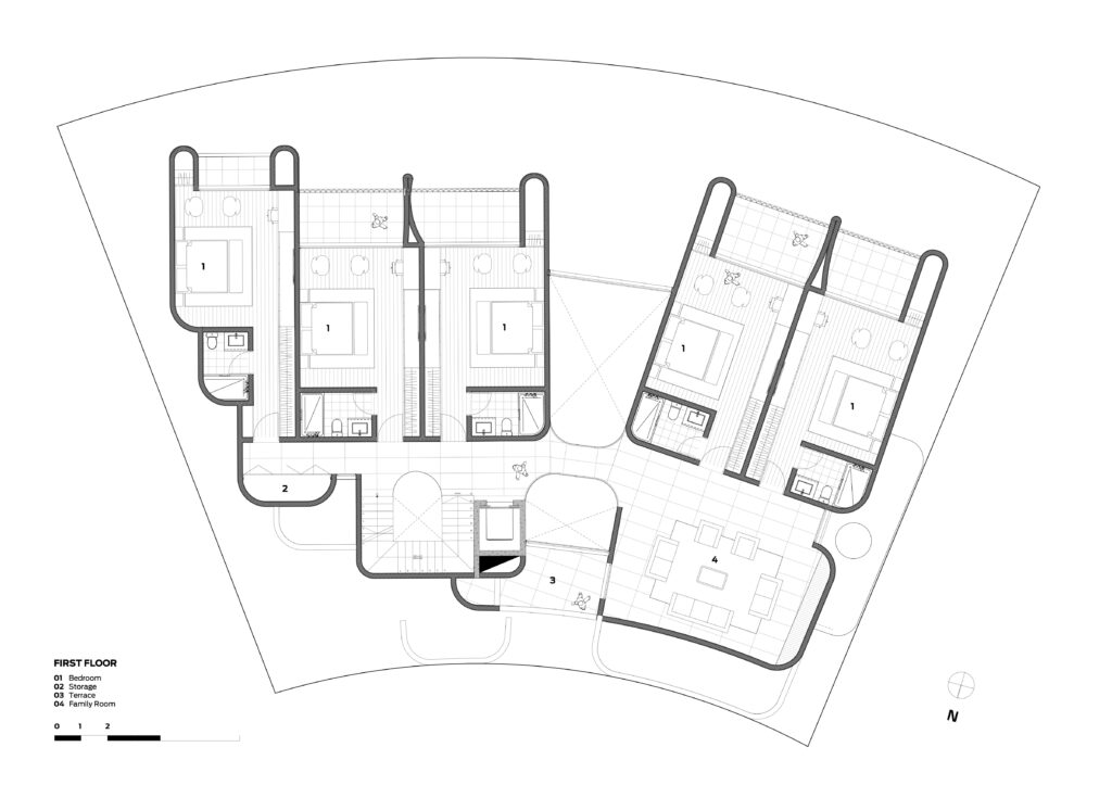
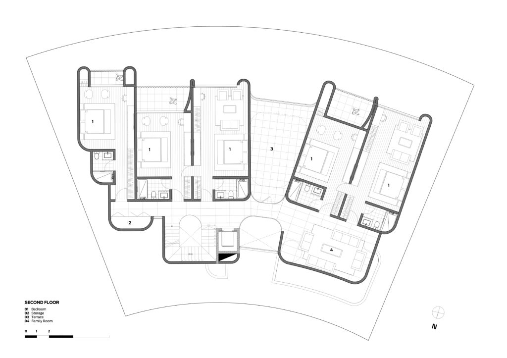
Situated in a unique neighborhood where sea water has been ingeniously brought to the desert, this project draws profound inspiration from the dynamic qualities of the ocean. Embracing the concept of fluidity, my architectural design focuses on creating continuous, flowing spaces that evoke the sensation of water moving through the landscape.

Through thoughtful spatial planning and innovative design elements, the project allows users to experience a sense of unbroken continuity, mirroring the effortless movement of water. This design strategy not only reflects the surrounding environment’s transformative integration of water but also enhances the user’s interaction with the space, allowing them to move through the area as fluidly as water flows through its channels.

Section
View - Beach Side

Credits

Client
Al Helal Family
Architect
Jose Luis Vintimilla
Local Architect
Yousef Nizami
Collaborators
Grear Architects + Partners Group